锦|绣|澜|山|售|楼|处
G o r g e o u s m o u n t a i n
本案设计师:朱雅芝
项目面积:3000㎡
项目风格:现代新中式
设计理念:梦境之初,溪岸不远,天地之间, 澜山已现
......



陆家嘴·锦绣澜山项目位于苏州高新区浒关镇苏通路与苏钢路交汇处,项目占地66万方,总建108万方。苏州又称姑苏,因其既有园林之美,又有山水之胜,自古便是文人墨客题咏吟唱之地。人们常说上有天堂,下有苏杭。这句话便很好的体现了苏州适宜人居的地理环境。相对于一些大城市的拥挤与喧嚣,苏州生活的温婉与恬静便令许多人非常的向往。



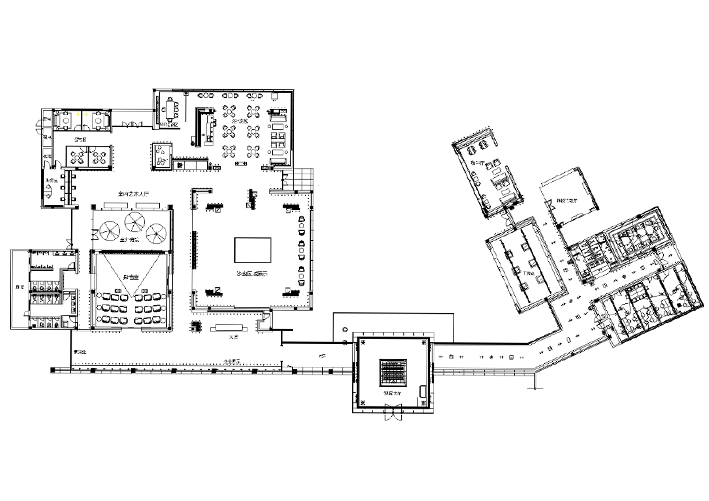
平面规划图 Floor plan

云来山更佳,云去山如画。
山因云晦明,云共山高下。
——元.张养浩《雁儿落带得胜令·退隐》
自古诗人,都爱山咏山,此项目位于山水环抱之地,设计师将此项目分为两个板块,前为山,后为水,人为动。集浑然、大气、天成为一体。

朱雅芝老师将硬装材质整体调偏灰色系,软装搭配将会根据硬装的最终效果来进行设计,更好的将硬装与软装融合在一起,和谐与统一。
迎宾大厅 Welcome hall

大堂 The lobby


沙盘展示区 Sand table


影音室 Av room

室内艺术长廊 ART HALL



朱雅芝老师在室内艺术长廊处,
设计了水形椅,
将山水主题串联在整个项目中
洽谈区 NEGOTIATION



提取了水的元素,放入在了洽谈区


此处设计师采取了东境西韵的手法,将中式形式的卷帘,利用了错落的卷帘形式,仿佛键盘上跳动的音符,每每在日出与日落,眷恋上都会倒映出山的美。
VIP洽谈区 NEGOTIATION

咖啡厅 COFFEE SHOP
过道前厅 VESTIBULE


大隐隐于市
真正宁静的心境
不是自然造就的
而是你自己的心境的外化
预约装修
紫苹果声明:
Copyright © 2021 zpgsh.com All Rights Reserved. 沪ICP备18032838号-1 上海紫苹果装饰有限公司闵行分公司
上海紫苹果国际设计-品质赢得口碑



