斯文、儒雅的第一印象
这背后
却有着对设计的『 强势 』把控
为您打造更美好的生活方式
这份源于对设计的『 本末 』尊重
让他的设计,不仅仅只是好看
而有着更深入的
关乎情感融入、生活习惯、品味彰显、细节关怀……
诸多内在诉求的『 诠释 』

今天的主人公『 江舟 』设计师
就是这样一位
能准确拿捏住业主『 核心 』诉求的设计师
与志趣同行
围绕美好和生活来展开空间设计
自小对画作的坚持,打下了对“美学”的创作基础;大学艺术设计的专业学习,奠定了对“空间”的敏锐把控;14年的职业生涯,更是将美学和空间灵活的糅合,创作出了一个个品质美家。
江舟设计师认为:“所有的空间设计,不论面积大小,风格定义。从前期的布局规划、主材选定,到后期的灯光运用、智能介入、软装搭配。所有承载,都是围绕『 美好 』和『 生活 』来展开。”
14年来,始终坚定“设计,就是打造更美好的生活方式”的理念。他一直在不断尝试,不断完善、不断蜕变,以求找到更多变的解决方案,来定制每一个客户的美好生活方式。
天生细节控
业主想表达的,都在这所房子里
当问到他,为什么会选择紫苹果?
他说:“来之前就听说过紫苹果,在行业的口碑很好,最重要的是工程做的好,这样就会避免很多的麻烦,而且我也去工地看过,无论是施工的工艺,还是工程的管理,都非常的不错。所以,最终我就来到了紫苹果”。


正是这份对紫苹果的信任,让他在服务客户的过程中更加的自信、从容。虽然去年10月份才加入紫苹果,但是已经有客户把朋友介绍给他。
客户李先生,是江舟设计师今年2月份服务的一个客户。由于疫情的原因,居家办公,所有的沟通都只能在线上进行。
再加上客户李先生还找了另外两家公司:一家是之前给他做过办公室装修服务的,另外一家是给他现在住的这套房子装修服务的。所以对于江舟设计师来说,一点优势都没有,他也是非常的犯难。
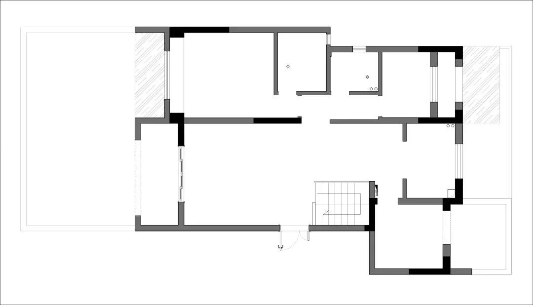
当看到户型图的时候,江舟设计师就发现了此户型的三个不足之处:1、一层餐厅受到楼梯位置挤压,空间很小;2、一层主卫和客卫面积都很小;3、地下自然采光不足。为了让布局更加的合理,居家动线更加的流程,江舟设计师针对户型的不足,做了很大的调整。


将一层厨房和餐厅进行调整,空间利用率更高。将生活阳台融入厨房空间,面积更大,让“冰箱取物——洗涤切配——下厨烹饪——美食享用”这一系列过程中在厨移动路线,更加顺畅。


将一层主卫和客卫的尺寸进行了调整,面积更大。


保留采光井的挑空,负一楼靠近挑空的位置,做了敞开式的空间,采光更好,更加的通透。阳光洒落,自然美景,直入家里。
旭辉铂悦庐州府 | 现代轻奢 | 300㎡ | 地复式
为了全面的了解李先生的需求,江舟设计师不得不全面详细的沟通确定,有时候客户都“不耐烦”了。
为了保障最终的效果可以一次性的“打动”李先生,江舟设计师在最终效果图确定中,一件配饰、一个摆件、一个灯饰,都不断的调整搭配,直到满意为止。

江舟设计师认为:“将自己都不满意的作品,交付给客户,不仅是对自己的不负责,更是对客户的不负责”。

这份对设计的尊重,对客户的负责,最终也得到了客户的认可。虽然没见过面,但是看了一次方案,就签订了设计合同。今年8月份在看了工地之后,就直接签订了施工合同。现在,工地的水电已经改好了。

客户李先生家开工图
就在与李先生签订了设计合同不久,就将自己的朋友叶先生介绍给了江舟设计师。
金科半岛一号 | 500㎡ | 新中式 | 别墅
业主叶先生非常注重细节和设计感,他希望整个空间生活的动线要非常的流畅,而且最终的效果一定要大气、有张力。
因此,江舟设计师将整体风格定义为新中式风格。将客厅位置保留挑空,大尺度的背景墙是整个空间的亮点,木质的温润,石材的气势在空间里相得益彰。

叶先生的房子一共四层,改动比较多,江舟设计师做了详细的设计方案,更是在别墅一二层的位置做了现浇,不仅增加了南边卧室的面积,还增加了北面的露台空间。这个整改建议,叶先生及家人都非常的满意。于是,最终签订了合同。

客户叶先生家开工图
叶先生说:“江舟设计师真的非常专业,虽然在沟通过程中,有一些分歧,但是他都会从入住后的体验感上给我们分析、讲解,让我们更加清楚他的设计初衷。虽然有些‘强势’,但是我能感受到他的用心,他确实是在帮我解决问题”。
预约装修
紫苹果声明:
Copyright © 2021 zpgsh.com All Rights Reserved. 沪ICP备18032838号-1 上海紫苹果装饰有限公司闵行分公司
上海紫苹果国际设计-品质赢得口碑



